- ALC
PANELALC 패널 제품 종류 -
-
– 내, 외벽 패널
일반패널 내벽, 외벽, 간막이벽 등에 사용하며 패널 길이는 구조계산에 의해 결정됩니다. 일반적으로 패널의 최대길이는 패널두께의 40배까지 가능합니다. 디자인패널 표면을 다양한 문양으로 가공한 패널로 개성있는 미관을 창출합니다. 커튼월패널 쌍용ALC커튼월공법 전용패널로서 현장설치에 필요한 긴결철물을 패널 내 매립시켜 생산합니다. 현장작업을 최소화하고 시공품질을 향상시킵니다. 인방 (Sill, Lintel) 건축물의 외벽 모서리부분에 사용하며 최대길이는 5m입니다. -
– 슬라브 패널
바닥슬라브 패널 층간 바닥슬라브용 패널로서 패널두께별 패널길이는 구조계산에 의해 결정됩니다. 지붕슬라브 패널 지붕슬라브용 패널로서 패널두께별 패널길이는 구조계산에 의해 결정됩니다. -
– 패널 규격 (하중에 따른 구조계산에 의함. 모든 패널은 주문품임)
-
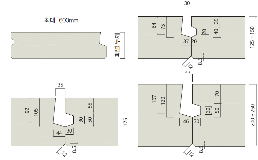
– 패널 단부의 형상 [벽 패널]
-
– 패널 단부의 형상 [바닥 슬라브 패널]
-
– 내, 외벽 패널
- ALC
PANELALC 디자인패널 -
-
- ALC
PANELALC 패널공법 -
-
– ALC패널 내벽공법
-
– SDR공법 (쌍용 ALC Dry Rocking 공법)
-
– SAC공법 (쌍용ALC 커튼월공법)
적용지역 기본 풍속 40 m/sec. 이하 지역 즉, 포항, 울릉도, 구룡포, 오천, 홍해, 감포를 제외한 전국 대부분 지역 건물의 위치 노풍도 (지표면 조도구분) – A,B,C 지역 설치 높이 지상 100m 까지 약 25~30층 규모의 건축물 유닛 모듈의 유연성 최대 길이 4.5m X 폭 600m (1cm 단위로 주문생산) 다양한 건축물의 형태 및 규모에 적용 가능 패널의 두께 125, 150, 175, 200, 225, 250mm 적재적소에 적합한 두꼐를 선택, 사용 구조성능의 확보 모든 긴결철물의 제작, 조립을 공장작업으로 수행하고 현장작업을 단순화 시켜 시공품질 확보 외부 마감 다양한 색상과 질감의 고기능성 도장재 현장마감
-
– ALC패널 내벽공법

